河川砂防技術基準 設計編 技術資料

国土交通省 水管理・国土保全局
原典を見る

本ページは原典を学習用に再構成したものです。最新・正式な内容は原典をご確認ください。

第7節 堰

7.1 総説

7.1.1 適用範囲

<考え方>

本節は、堰を新設あるいは改築する場合の設計に適用する。ただし、既設の堰の安全性能の照査にも構造形式や現地の状況等に応じ準用することができる。また、本節で扱う堰とは、河川の水位を調節して、都市用水や灌漑用水等の取水や、塩水の遡上の防止、河川を分派する等の目的のために河道を横断して設置する施設で、河道の縦断形を将来にわたって制御する施設である。堰と水門又は樋門との区別は、関連通知を参照されたい。

なお、構造上の分類として、堰は、可動堰と固定堰に分けられ、ゲートによって水位の調整ができるものを可動堰といい、調節のできないものを固定堰(又は洗い堰)という。

<標 準>

本節は、堰を新設あるいは改築する場合の設計に適用する。

<関連通知>

1)河川管理施設等構造令及び同令施行規則の施行について,昭和51年11月23日,建設省河政発第70号,建設省河川局長通達.

7.1.2 用語の定義

<考え方>

堰は、本体、水叩き、護床工、基礎、遮水工、取付擁壁・護岸、高水敷保護工、魚道、閘門、土砂吐き及び管理橋・操作室等の付属施設の各部位によって構成される。このうち、本体は、ゲート、床版、堰柱、門柱、ゲートの操作台で構成される。

引上げ式ゲートを有する可動堰の各部位の名称は図7-1による。 固定堰の各部位の名称は図7-2による。

<標 準>

次の各号に掲げる用語の定義をそれぞれ以下に示す。

  • 一.径間長:隣り合う堰柱の中心間距離
  • 二.堰周辺の堤防:堰の周辺の堤防で、堰本体、魚道や土砂吐きの取り付けに伴う開削や杭基礎等の施工の影響を受ける範囲

図7-1 堰の各部位の名称(引上げ式ゲートを有する可動堰の場合)

図7-2 堰の各部位の名称(固定堰の場合)

7.2 機能

<考え方>

堰は主に以下のとおり分類され、それぞれの設置目的を達成するために必要な機能を有することが求められる。

  1. 分流堰:河川の分派地点に設け、水位を調節又は制限して洪水又は低水を計画的に分流させる。
  2. 潮止堰:感潮区間に設け、塩水の遡上を防止する。
  3. 取水堰:河川の水位を調節して、都市用水、灌漑用水及び発電用水等を取水する。
  4. その他の堰:河川の水位及び流量(流水)を調節する多目的堰、河口堰は潮止堰と取水堰の機能を有する多目的堰の場合が多い。

<必 須>

堰は、設置目的に応じて、分流機能、取水の機能、取水等を目的とした水位及び流量(流水)調節機能のうち、必要な機能を有するよう設計するものとする。

<関連通知等>

1)河川管理施設等構造令及び同令施行規則の運用について,昭和52年2月1日,建設省河政発第5号,建設省河治発第6号,最終改正:平成11年10月15日建設省河政発第74号,河計発第83号,河治発第39号,建設省河川局水管理課長、治水課長.

7.3 設計の基本

<考え方>

堰の設計に当たっては、以下の事項について検討し、設計に反映することが求められる。

1)基本方針

堰は「7.2 機能」に示す事項を満足すると共に、想定される外力に対して安全な構造となるよう設計する必要がある。

堰は河川を横断して設ける施設であることから、堰に接続する高水敷や堤防の洗掘の防止について適切に配慮された構造とし、堰周辺や湛水区間の堤防等が一連区間の中で相対的な弱点とならないよう設計する必要がある。また、堰は河床を固定するものであることから、予め、これまでの河川整備と洪水等による長期的な河道の応答を分析し、堰の新設又は改策による効果や影響が河道の変化にどのように顕れるかを考慮の上、堰の位置、平面形状及び方向、縦断形状、敷高や可動部・水通しの位置等の施設の設計条件を検討する必要がある。

なお、河川改修や取水位置の変更など様々な理由により、堰などの河道内の構造物を改策し、旧施設を撤去する場合には、周辺の堤防、河床や河岸及びその他の河川管理施設等への影響が生じることも想定される。このため、長期的な河道の応答を分析したうえで、一部施設の残置や撤去方法など必要な対策工等を検討する必要がある。

堰の位置や敷高については河道計画で概略設定しているが、堰設置後の将来的な河床変動を考慮して、位置や敷高を見直すものとする。特に、堰設置後の河床変動が激しく、維持管理が容易でないことが想定される場合には河道計画を見直すことも考える。河道計画を見直した場合には、堰設置後の河床変動特性を再度確認する必要がある。

2)堰の位置

堰の位置の決定に当たっては、堤内地の地形、地盤高、水路系統、水路敷高及び洪水時の本川の特性等を調査する。調査結果及び「計画編 施設配置等計画編 第2章 河川施設配置計画 第2-1章 河道並びに河川構造物 第5節 堰、水門、樋門 5.1 設置の基本」を踏まえ、堰の位置を決定する。なお、狭窄部(山間狭窄部は除く。)、水衝部、支川の合流点等、河床の変動が大きい箇所、みお筋の不安定な箇所をできるだけ避けて計画する。また、河川に設けられている他の工作物(橋、伏せ越し等)に近接した箇所、堤内地の排水に影響を及ぼすおそれのある箇所、堰の計画湛水位が堤内地盤高より高くなる箇所に設置する場合には、影響を緩和するための対策を行う。

3)平面形状及び方向

堰を流下する流水は、通常、堰と直角の方向に流れるものであり、その平面形状によっては、下流側の水衝作用を助長したり、局所洗掘の原因となることが多い。従来、取水の都合から、斜堰が用いられた例も少なくないが、このような理由から、堰の河川横断方向の線形は洪水の流心方向に直角の直線形とし、堰柱の方向は、洪水の流心方向とすることを基本とする。なお、中小河川において、下流部での局所洗掘や堰柱付近での洪水流の著しい乱れ等による治水上の支障が生じるおそれがない場合は、円弧の緩傾斜(全面魚道タイプ)の堰とすることができる。

4)縦断形状

堰の設置によって河道の縦断形が変化し、堰上流河道では河床上昇、堰下流河道では河床低下が生じる可能性があるため、河道の維持管理が容易でない場合には河道計画を見直すことも考える。河道計画を見直した後、堰設置後の河床変動特性を再度確認する必要がある。

5)堰の敷高

堰の敷高(又は固定部)は、一般に、設計・管理の目安となる河床高と一致させる。ただし、設計・管理の目安となる河床高と比較し現河床高が低い場合においては、上下流の河床高を考慮し適切に設定する必要がある。

6)端部の構造(嵌入等)

堰本体の端部処理については、堰取り付け部の上下流を擁壁構造の護岸とし、堤体に嵌入しない。これは、堤体に嵌入した場合、堰取り付け部の護岸が被災し、一方で堰本体が残存することにより堤防にまで被災が及ぶ危険性があるためである。また、複断面河道では、高水敷上の流水が高水敷や本体下流側の河岸の洗掘を起こす可能性があることから、これを防止するため、高水敷に保護工を設ける。

7)堰柱

イ 堰柱の幅と断面形状

堰柱の幅については、ゲートの大きさ、堰柱の高さ、地盤の土質条件等によって左右されるため、構造令には特にそれを規定する条項が定められていないが、技術的に無理のない範囲で、極力狭くするよう配慮する必要がある。堰柱(管理橋の橋脚を含む)による河積の阻害率(計画高水位における流向と直角方向の洪水吐き部の堰柱の幅の総和が川幅(無効河積分を除く)に占める割合)(図7-3参照)は、おおむね10%を超えないものとする。やむを得ずこれを超える場合は堰柱のせき上げによる水位上昇量や背水区間の計算を行い、上流水位に影響を与える場合には、河積拡大等の措置を講ずる必要がある。

なお、堰柱の断面形状については、洪水時の流水抵抗を少なくするため、できるだけ細長い楕円形又はこれに類する形状のものとする。

図7-3 堰の阻害率

ロ 両端の堰柱の位置

堰の構造は付近の河岸及び河川管理施設等の構造に著しい支障を及ぼさぎ、堰に接続する河床及び高水敷の洗掘の防止について適切に配慮された構造とする必要があり、両端の堰柱の位置は、計画堤防を著しくおかさないよう配慮する必要がある。両端の堰柱を堤防内に設ける場合には、それが堤防の弱点となるおそれがある。一方、両端の堰柱を堤防外に設ける場合には、堤防との間に無効河積が生じて堰による河積の阻害が大きくなることに加え、堤防との間が流木等により閉塞しやすくなるおそれがある。これを総合的に勘案の上、両端の堰柱の位置を決定する。

また、堰が低水路部分のみに設けられる場合には、原則として、低水路ののり肩線と堰柱の内側(ゲート側)を合わせるものとするが、低水路の断面積が上下流に比べて著しく大となるときは及び起伏堰にあっては、堰の設置前の低水路断面積と等値となるよう両端の堰柱の位置を決定して差し支えない。

8)ゲート設備

ゲートは、確実に開閉(起伏)し、かつ、必要な水密性及び耐久性を有する構造が求められる。開閉装置は、ゲートの開閉(起伏)を確実にできる構造が求められる。また、常用電源が喪失した場合に備え、予備電源や予備動力、補助開閉装置を設けるなど、ゲートの開閉に必要な機能を維持することが求められる。なお、地域特性に応じて、自動化、遠方操作化や遠隔操作化を検討する。

9)安全、確実・円滑な施工

堰の施工では、仮締切に生じる揚圧力や掘削によるボイリングなど、安全を脅かす状況が発生する可能性がある。このため、設計においても安全で確実・円滑な施工が可能となるような配慮が求められ、施工上の制約から構造が決まることがある。

10)機能を長期的に容易に維持できる構造

長期的に機能を低下させる要因としては、部材等の経年劣化、流砂等による部材の摩耗、圧密による地盤変動や土砂堆積、堰下面、護岸背面等における土砂の吸出しがあり、これらに配慮する必要がある。

門柱については、断面形状を凹凸の小さい単純なものとする等により、部材としての耐荷機構が明瞭で耐震性に優れた構造とする必要がある。

11)維持管理に配慮した構造

堰の点検、修繕、更新等の維持管理に配慮した構造にする必要がある。

<必 須>

堰の設計に当たっては、以下の事項を反映するものとする。

  1. 計画高水位(高潮区間にあっては、計画高潮位)以下の水位の流水の作用に対して安全な構造とするものとする。
  2. 計画高水位以下の水位の洪水の流下を妨げることなく、堰周辺の堤防、河岸及び河川管理施設等の構造に著しい支障を及ぼさず、並びに堰に接続する河床及び高水敷等の洗掘等の防止について適切に配慮された構造とするものとする。
  3. 常用電源が喪失した場合においても必要最小限の開閉操作が可能となるよう設計するものとする。

<標 準>

堰の設計に当たっては、以下の事項を反映することを基本とする。

  1. 堰に求められる機能を満足するために、堰の平面形状及び方向、端部・堰柱構造や両端の堰柱の位置を設定するとともに、設計の対象とする状況と作用に応じた安全性能を設定し、照査によりこれを満足することを確認する。
  2. 堰に求められる機能を満足するために、上下流の河床洗掘が発生しにくく、土砂が堆積しにくい構造となるよう設計するとともに、維持管理上、堆積土砂等の排除に支障のない構造となるよう設計する。
  3. 環境及び景観との調和、構造物の耐久性、維持管理の容易性、施工性、事業実施による地域への影響、経済性及び公衆の利用等を総合的に考慮する。
  4. 土質・地質調査、河道特性や自然環境等を把握するため現地条件や設置目的に応じて必要な調査を計画して実施する。

<推 奨>

環境面では、護岸等のブロックに適度な空隙や粗度を発生させ水生生物の生息や移動(生態系ネットワーク)等に支障が生じないように工夫した設計を、景観面については、コンクリートブロックの明度(護岸の明度は6以下を目安)やテクスチャー(輝度の標準偏差は11以上を目安)、表面の景観パターン等に留意した設計を行うことが望ましい。

7.4 基本的な構造

7.4.1 流下断面及び堰径間長の設定

(1)流下断面

<考え方>

堰の設置に当たっては、設置必然性があり、かつ、治水上、河川環境上著しく支障がない構造とする必要がある。これは、堰の固定部(又は固定堰)は、洪水の流下に与える影響も極めて大きく、洪水氾濫の原因となった事例が見受けられるためであり、適切に洪水の流下面(計画高水流量を計画高水位以下で安全に流下させるために必要な断面をいう。)の確保を図る必要がある。

堰の設置に当たっては、以下の事項について反映することが求められる。

  1. 現況河道と堰の設計時の横断形が著しく異なる場合において、堰の機能が著しく阻害されるおそれのあるときは、堰の設置時期と関連する河川整備の実施時期についての調整を行うとともに、関連の河川整備の促進を図ることも考えられる。
  2. 山間狭窄部であることその他河川の状況、地形の状況等により治水上の支障がないと認められるなど、堰(固定堰を含む。)の設置地点に堤防(計画堤防を含む。)がない場合であり、堰の設置による治水上の影響が堰の上下流に及ばない場合には、治水上の機能の確保のため適切と認められる措置を講ずることにより、流水を流下させるためのゲート及びこれを支持する堰柱等の可動部以外の部分及び固定堰は、流下断面内に設けることができる。流水への影響が小さく、上流への影響がない場合は、土砂吐き、舟通し、魚道、固定部又は固定堰等を流下断面内に設けることができる。

図7-4 せき上げ水位の計算イメージ

  1. 土砂吐き、舟通し、魚道等(固定堰は除く)を流下断面外に設けるとその機能が発揮されない場合があるが、河床の状況によりやむを得ないと認められる場合には、次のような措置を講ずることにより、流下断面内に設けることができる。
    • ①河道の横断形又は現状の流下断面積をそれぞれ小さくすることなく、かつ、治水上支障のない範囲で部分的に低水路の法線形を修正する場合。
    • ②構造令第39条(可動堰の可動部の径間長の特例)第1項の表の第3欄に掲げる径間長に満たない可動部(土砂吐き及び舟通し、それらを設けることにより増えることとなる堰柱を含む。)及び魚道等は無効河積と考え、阻害される河積に相当する河積を低水路又は川幅の拡幅により別途確保する場合(図7-5参照)。

図7-5 拡張に伴う取付けの例

<必 須>

ゲート、堰柱等の可動部以外の部分及び固定堰は、流下断面内に設けてはならない。ただし、山間狭窄部であることその他河川の状況、地形の状況等により治水上の支障がないと認められないと認められる場合において、治水上の機能の確保のため適切と認められる措置を講ずるときはこの限りでない。

(2)堰の径間長

<考え方>

堰の径間長は、河積の阻害を小さくするためできるだけ大きくとり、堰柱の数を減ずることが重要である。堰柱に流木が引っ掛かる等により閉塞が生じ、それが原因で災害が発生することがないよう流木長を考慮した径間長とする必要がある。

<必 須>

堰の径間長は、堰が横断する河川を洪水時に流下する流木等による閉塞を防止するため、構造令第37条から第39条、施行規則第17条から第19条に基づき、堰の固定部(又は固定堰)を流下断面外とするとともに、計画流量に応じて定めた値以上となるように適切に設定するものとする。

7.4.2 ゲート開閉時の高さの設定

(1)引上げ式ゲートの最大引上げ時のゲート下端高

<考え方>

堰は、引上げ式ゲートの最大引上げ時において河川の所定の流下能力を確保できるようにする。そのため、最大引上げ時のゲート下端高は、計画高水位との間に洪水時における流木等流下物の浮上高等を考慮して、しかるべき空間が確保できるよう設定する必要があり、一般的には、現状又は計画堤防高のいずれか高い方に合わせる。

なお、引上げ式ゲートの最大引上げ時のゲート下端高は、ゲートの維持管理に用いる保守点検に必要な揚程は含まない。

<必 須>

引上げ式ゲートの最大引上げ時のゲート下端高は、以下の事項に基づき定めるものとする。

  1. 引上げ式ゲートの最大引上げ時のゲート下端高は、堰が横断する河川の計画高水位に構造令第20条第1項の表の下欄に掲げる値(以下「余裕高」という。)を加えた高さ以下で、高潮区間においては計画高潮位を下回らず、その他の区間においては当該地点における河川の両岸の堤防(現状又は計画堤防高のいずれか高い方の堤防)の表法肩の線の高さを下回らないものとする。ただし、背水区間に設ける場合のゲート下端高は、治水上の支障がないと認められるときは、次に掲げる高さのうちいずれか高い方の高さ以上とすることができるものとする。
    • 一 当該河川に背水が生じないとした場合に定めるべき計画高水位に、計画高水流量に応じた余裕高を加えた高さ
    • 二 計画高水位(高潮区間にあっては、計画高潮位)
  2. 地盤沈下のおそれがある地域に設ける場合のゲート下端高は、1)によるほか、予測される地盤沈下及び河川の状況を勘案して必要と認められる高さを下回らないものとする。
  3. 洪水を分流させる堰については、前項1)及び前項2)の規定を適用しない。

(2)起伏式ゲートの起立時のゲート上端高

1)起立時のゲート上端高

<考え方>

起伏式ゲートの起立時のゲート上端高は、堰が有する流水の制御機能を確保するため、堰の目的に応じた水位に基づいて設定する必要がある。ただし、起伏式ゲートは、下流側の堆砂等により不完全倒伏が懸念されるため、万一不完全倒伏という事態が起こってもそれが直ちに災害に結び付かないようにあらかじめ配慮しておく必要がある。

<標 準>

起伏式ゲートの起立時のゲート上端高は、以下の事項を反映することを基本とする。

  1. 起伏式ゲートの起立時における上端高は、設計・管理の目安となる河床高と計画高水位の中間の高さ以下とする。
  2. 起伏式ゲートの直高(起立時のゲート上端高からゲート下流側の床版までの高さ)は、3m以下とする。

2)倒伏時のゲート上端高

<必 須>

起伏式ゲートの倒伏時のゲート上端高は、以下の事項に基づき定めるものとする。

  1. 起伏式ゲートの倒伏時における上端高は可動堰の基礎部(床版を含む。)の高さ以下とするものとする。
  2. 洪水を分流させる堰については、前項の規定を適用しない。

7.4.3 門柱の天端高

<考え方>

門柱は、主に引上げ式ゲートの開閉を行うために設け、ゲートの開閉が容易な構造とする必要がある。また、門柱の天端高は、最大引上げ時のゲート下端高が計画高水位との間に洪水時における流木等流下物の浮上高等を考慮して、しかるべき空間を確保するとともに、ゲートの維持管理・更新のための戸溝からの取り外し等に必要な高さを確保する必要がある。

<標 準>

引上げ式ゲートの場合の堰の門柱の天端高は、最大引上げ時のゲート下端高にゲートの高さ及びゲートの管理に必要な高さを加えた高さを確保するよう設計することを基本とする。

図7-6 門柱

7.4.4 材質と構造

(1)使用材料

<標 準>

堰の使用材料は、設置目的に応じて要求される強度や耐久性を満足するための品質を有し、その性状が明らかにされている材料を使用することを基本とする。

<推 奨>

鉄筋コンクリート構造物(プレキャスト製品を除く)に用いるコンクリートの設計基準強度は24N/mm²、異形棒鋼の種類はSD345を推奨する。

(2)主な構造

<考え方>

堰を構成する主な構造は鉄筋コンクリート構造又はこれに準ずる構造とし、ゲートについては引上げ式ゲート及び回転式ゲートは鋼構造又はこれに準ずる構造とする。起伏式ゲートは鋼構造又はゴム引布構造又はこれに準ずる構造とする。

<標 準>

床版、堰柱、門柱、ゲートの操作台、水叩きは、鉄筋コンクリート構造又はこれに準ずる構造とすることを基本とする。床版、堰柱、門柱、水叩き、遮水工は、部材の安全性と継手部の水密性の確保によって、全体として必要な水密性を有する構造となるよう設計することを基本とする。

引上げ式ゲート及び回転式ゲートは鋼構造又はこれに準ずる構造とし、起伏式ゲートは鋼構造又はゴム引布構造又はこれに準ずる構造とし、ゲートは確実に開閉(起伏)し、かつ必要な水密性を有する構造となるよう設計することを基本とする。

<推 奨>

引上げ式ゲートの場合の可動堰の本体の構造形式は、一般に以下に示すものが用いられている(図7-7参照)。

図7-7 可動堰本体の形式

(3)設計用定数

<標 準>

堰の設計に用いる各種定数は、適切な安全性が確保できるよう、使用する材料の力学特性を考慮し、必要に応じて調査・試験を実施したうえで、設定することを基本とする。

① ヤング係数

<推 奨>

ヤング係数として、以下の値を用いることが望ましい。

1)ヤング係数

  • コンクリートのヤング係数は、2.5×1042.5 \times 10^4 N/mm²(設計基準強度:24N/mm2)
  • 鋼材のヤング係数は、2.0×1052.0 \times 10^5 N/mm²

2)ヤング係数比

  • 許容応力度による設計を行う場合の鉄筋コンクリート部材の応力度の計算に用いるヤング係数比は15

② 地盤に係る定数

<標 準>

地盤に係る定数は、ボーリング調査、サウンディング調査、原位置試験、室内土質試験を組合せた地盤調査(既往調査含む)や周辺の工事履歴、試験施工等に基づき総合的に判断し、施工条件等も考慮したうえで、設定することを基本とする。

<推 奨>

1)基礎底面と支持地盤との間の摩擦係数と付着力

基礎底面と支持地盤との間の摩擦係数と付着力として、表7-1に示す値を用いることができる。

表7-1 摩擦角と付着力

条件摩擦角 ϕB\phi_B(摩擦係数 tanϕB\tan \phi_B付着力 cBc_B
土とコンクリートϕB=23ϕ\phi_B = \frac{2}{3}\phicB=0c_B = 0
土とコンクリートの間に栗石を敷く場合tanϕB=0.6\tan \phi_B = 0.6ϕB=ϕ\phi_B = \phi の小さい方cB=0c_B = 0
岩とコンクリートtanϕB=0.6\tan \phi_B = 0.6cB=0c_B = 0
土と土又は岩と岩ϕB=ϕ\phi_B = \phicB=cc_B = c

ただし、ϕ\phi:支持地盤のせん断抵抗角(度)、cc:支持地盤の粘着力(kN/m²)、ϕB\phi_B:基礎底面と地盤との間の摩擦角(rad)、cBc_B:基礎底面と地盤との間の付着力(kN/m²)

2)地盤支持力及び摩擦係数

地盤支持力及び摩擦係数は、表7-2に示す値を用いることができる。

表7-2 地盤支持力及び摩擦係数(図として掲載)

3)地盤の許容鉛直支持力

地盤の許容鉛直支持力は、荷重の偏心傾斜及び基礎の沈下量を考慮した地盤の極限支持力に対して、表7-3に示す安全率を確保していることが望ましい。

表7-3 安全率

常時、洪水時地震時施工時
322

荷重の偏心傾斜及び基礎の沈下量を考慮した地盤の極限支持力は、次式により求めることができる。平板載荷試験により求める場合には、載荷試験の結果により確認した地盤の粘着力C、せん断抵抗角ϕ\phiを用いて以下の式に従って算出することが望ましい。

Qu=Ae{ακcNcSc+κqNqSq+12γ1βBeNγSγ}Q_u = A_e \left\{ \alpha \kappa c N_c S_c + \kappa q N_q S_q + \frac{1}{2} \gamma_1 \beta B_e N_\gamma S_\gamma \right\}

ここに

  • QuQ_u:荷重の偏心傾斜、支持力係数の寸法効果を考慮した地盤の極限支持力(kN)
  • cc:地盤の粘着力(kN/m²)
  • qq:上載荷重(kN)で、q=γ2Dfq = \gamma_2 D_f
  • AeA_e:有効載荷面積(m²)
  • γ1\gamma_1γ2\gamma_2:支持地盤及び根入れ地盤の単位体積重量(kN/m³)
  • BeB_e:荷重の偏心を考慮した基礎の有効載荷幅(m)、Be=B2eBB_e = B - 2e_B
  • BB:基礎幅(m)
  • eBe_B:荷重の偏心量(m)
  • DfD_f:基礎の有効根入れ深さ(m)
  • α\alphaβ\beta:基礎の形状係数
  • κ\kappa:根入れ効果に対する割増係数
  • NcN_cNqN_qNγN_\gamma:荷重の傾斜を考慮した支持力係数
  • ScS_cSqS_qSγS_\gamma:支持力係数の寸法効果に関する補正係数
  • tanθ\tan\theta:荷重の傾斜

図7-8 支持力係数 Nc を求めるグラフ

図7-9 支持力係数 Nq を求めるグラフ

図7-10 支持力係数 Nγ を求めるグラフ

(4)鉄筋コンクリート部材の最小寸法

<標 準>

鉄筋コンクリートの部材の最小寸法は、耐久性、強度を有するために必要なかぶり及び施工性に配慮し設定することを基本とする。

<推 奨>

鉄筋コンクリートの部材の最小寸法は、施工性を重視し主鉄筋を内側に配置するため、0.4mとすることが望ましい。

7.4.5 堰周辺の堤防

<考え方>

堰周辺の堤防には、本体、魚道や土砂吐きの施工による埋戻し部分も含まれる。その影響範囲は、対象とする事象によっても異なるが、堤防縦断方向に堤防高の2〜3倍以上に及ぶ。堰周辺の堤防に用いる土質材料は、堤防に適したものを選定し、十分に締固めを行う必要がある。

<必 須>

堰周辺の堤防が一連区間と比較して相対的に弱点とならないように設計するものとする。

<標 準>

堰周辺の堤防の断面形状(堤防高、天端幅、堤体幅)は、計画堤防断面以上であり、かつ、隣接する堤防断面以上とすることを基本とする。

堰湛水域の波浪等に対する安全性の照査については、「第2節 堤防」に準じて堤防の安全性照査を行い、一連区間と比較して相対的に安全性が低下しないように必要に応じて対策を行う。

7.5 安全性能の照査等

7.5.1 設計の対象とする状況と作用

<考え方>

堰の設計に当たっては、常時、洪水時、地震時、高潮時及び風浪時の安全性能を確保することが求められる。全ての堰について、常時、洪水時及び地震時、さらに高潮堤に接続して設けられる堰は高潮時、湖岸堤に接続して設けられる堰は風浪時についても照査する必要がある。

<標 準>

安全性能の照査に当たっては、次の表のように設計の対象とする状況と作用を設定し、これを踏まえて照査事項を設定することを基本とする。常時、洪水時及び地震時については全ての堰において設定し、これに加えて、高潮区間の堰の場合は高潮時、湖岸堤に接続して設ける堰の場合には風浪時について設定することを基本とする。

堰の状況作用
常時自重(死荷重)、活荷重、土圧(水流直角方向)、水圧、泥圧(必要な場合)、揚圧力、風荷重、雪荷重(必要な場合)
洪水時自重(死荷重)、活荷重、土圧(水流直角方向)、水圧*、揚圧力、風荷重、ゲート等の自重、流木の衝突(必要な場合)※計画高水位。高潮区間にあっては計画高潮位
高潮時自重(死荷重)、活荷重、土圧(水流直角方向)、水圧、泥圧(必要な場合)、揚圧力、風荷重、雪荷重(必要な場合)、ゲート等の自重等、舟の衝突(水流方向)、高潮位における波浪による波圧(水流方向)
風浪時自重(死荷重)、活荷重、土圧(水流直角方向)、水圧、泥圧(必要な場合)、揚圧力、風荷重、雪荷重(必要な場合)、ゲート等の自重等、舟の衝突(水流方向)、風浪による波圧(水流方向)、副振動・セイシュによる影響(必要な場合)
地震時自重(死荷重)、水圧、泥圧(必要な場合)、揚圧力、地震の影響*、雪荷重(必要な場合)、ゲート等の自重、地震(津波)による波圧 ※構造物の重量に起因する慣性力、地震時土圧、地震時動水圧、液状化の影響
その他施工時荷重

<推 奨>

堰の設計に当たっては、作用毎に以下の数値を用いることが望ましい。

1)自重(死荷重)

自重(死荷重)は、適切な単位体積重量を用いて算出する。材料の単位体積重量は、表7-4及び表7-5の値を参考に定める。

表7-4 材料の単位体積重量(kN/m³)

材料単位体積重量
鋼・鋳鋼・鍛鋼77.0
鋳鉄71.0
アルミニウム27.5
鉄筋コンクリート24.5
プレストレスを導入するコンクリート(設計基準強度60N/mm²以下)24.5
プレストレスを導入するコンクリート(設計基準強度60N/mm²を超え80N/mm²まで)25.0
コンクリート23.0
セメントモルタル21.0
木材8.0
歴青材(防水用)11.0
アスファルト舗装22.5

※ゲート等の機械設備については除く。

表7-5 土の単位体積重量(kN/m³)

地盤土質緩いもの密なもの
自然地盤砂及び砂礫1820
自然地盤砂質土1719
自然地盤粘性土1418
土・埋戻し・盛土砂及び砂礫2020
土・埋戻し・盛土砂質土1919
土・埋戻し・盛土粘性土1818

地下水位以下にある土の単位体積重量は、それぞれの表中の値から9を差し引いた値としてよい。地下水位は施工後における水位の平均値を考慮する。

2)活荷重

活荷重は、自動車荷重及び群集荷重とする。自動車荷重は必要に応じ、大型の自動車の交通状況に応じてTL-25荷重を考慮する。群集荷重は管理橋及び操作台等に3.5kN/m²の等分布荷重を考慮する。

3)土圧

① 静止土圧

静止土圧は、次式による。

Phd=K0(γ×h+q0)P_{hd} = K_0 (\gamma \times h + q_0)

ここに

  • PhdP_{hd}:任意の深さの水平土圧強度(kN/m²)
  • K0K_0:静止土圧係数(通常はK0=0.5K_0 = 0.5と考えてよい)
  • γ\gamma:土の単位体積重量(kN/m³)
  • hh:任意の深さ(m)
  • q0q_0:上載荷重(kN/m²)

② 主働土圧

主働土圧は、次式による。

Pa=KA(γ×h+q0)P_a = K_A (\gamma \times h + q_0)

KA=cos2(ϕθ)cos2θcos(θ+δ)[1+sin(ϕ+δ)sin(ϕα)cos(θ+δ)cos(θα)]2K_A = \frac{\cos^2(\phi - \theta)}{\cos^2\theta \cdot \cos(\theta + \delta) \left[ 1 + \sqrt{\frac{\sin(\phi + \delta) \cdot \sin(\phi - \alpha)}{\cos(\theta + \delta) \cdot \cos(\theta - \alpha)}} \right]^2}

ここに

  • PaP_a:任意の深さの主働土圧強度(kN/m²)
  • KAK_A:主働土圧係数
  • ξA\xi_A:主働崩壊角(度)
  • γ\gamma:土の単位体積重量(kN/m³)
  • hh:任意の深さ(m)
  • q0q_0:上載荷量(kN/m²)
  • α\alpha:地表面と水平面のなす角(度)
  • θ\theta:壁背面と鉛直面のなす角(度)
  • ϕ\phi:土の内部摩擦角(度)
  • δ\delta:土圧作用面の種別に応じた壁面摩擦角(度)。土と土の場合:δ=ϕ\delta = \phi、土とコンクリートの場合:δ=ϕ/3\delta = \phi/3

ただし、ϕα<0\phi - \alpha < 0 のときは sin(ϕα)=0\sin(\phi - \alpha) = 0 とする。上載荷量 q0q_0 は必要に応じて考慮する。ここで用いる角度は反時計回りを正とする。

③ 地震時主働土圧

地震時主働土圧は、河川構造物の耐震性能照査指針 Ⅳ水門・樋門及び堰編による。

4)水圧

① 静水圧

堰の上下流水位について、堰の操作上考えられる組合せを検討する。ただし、地震と高潮は同時に生起しないものとし、地震時慣性力及び地震時動水圧と洪水時における水圧は、同時に作用させる必要はない。ゲート引上げ時にも流水から受ける力を必要に応じて考慮する。

② 地震時動水圧

地震時動水圧は、河川構造物の耐震性能照査指針 Ⅳ水門・樋門及び堰編による。

③ 残留水圧

両端の堰柱や取付擁壁の前面の水位と背面の水位の間に水位差が生じる場合は、この水位差に伴う残留水圧を考慮する。残留水位(RWL)は、外水位が低下した場合などで両端の堰柱や取付擁壁の背後の地盤中に残留する水位であり、次のように定めてよい(図7-11参照)。

(1)自然地下水位(GWL)<両端の堰柱や取付擁壁背後の地盤高(GL)

  • 残留水位(RWL)=(計画高水位(HWL)−前面水位(WL))× 2/3

(2)自然地下水位(GWL)>両端の堰柱や取付擁壁背後の地盤高(GL)

  • 残留水位(RWL)=(計画高水位(HWL)−自然地下水位(GWL))× 2/3

図7-11 残留水位の設定方法(洪水時)

感潮区間の残留水位(RWL)は、前面潮位差の2/3の水圧差を対象とする(図7-12参照)。

図7-12 感潮区間の残留水位

5)泥圧

土砂の堆積によって生じる泥圧については、以下のとおりとする。

① 鉛直力

泥圧のうち鉛直力は、堆積した泥土の水中における重量とする。

② 水平力

水平方向の泥圧は次式によって求める。

Pe=Ce×Wl×dPe = Ce \times W_l \times d

  • PePe:水平方向泥圧(kN/m²)
  • CeCe:泥圧係数
  • WlW_l:泥土の水中における単位体積重量(kN/m³)
  • dd:泥土の深さ(m)

堆泥の重量は、Wl=W(1ν)×W0W_l = W - (1 - \nu) \times W_0 で示される。ここにW0W_0は水の単位体積重量(kN/m³)、WWは堆泥の見かけの単位体積重量(kN/m³)、ν\nuは堆泥の空隙率である。

これらの概略値として、下記の数値が常用されている。 W=1518W = 15 \sim 18 kN/m³、ν=0.30.4\nu = 0.3 \sim 0.4Ce=0.40.6Ce = 0.4 \sim 0.6W0=10W_0 = 10 kN/m³

6)揚圧力

揚圧力は、堰の操作上考えられる堰の上下流の水位差が最大となる水位により求める。また、耐震補強等で仮締切ゲートを用いて締め切る場合も、上下流の水位差を用いて揚圧力を算定する。

図7-13 揚圧力

7)風荷重

風荷重は3kN/m²とする。

8)温度変化の影響

温度荷重は、温度変化を±15℃とし、膨張係数を鋼で0.000012、コンクリートで0.00001として計算する。

9)雪荷重

雪荷重は、雪の単位堆積重量と積雪深の積として求める。一般に多雪地方においては、雪荷重3.5kN/m²を見込めばよい。積雪深は、既往の積雪記録、構造物上での積雪状態などを考慮して設定する。積雪のない地方では考慮する必要はない。ただし、積雪が少ないために積雪深を決定できない場合は、雪荷重を1kN/m²としてもよい。

10)構造物の重量に起因する慣性力

構造物の重量に起因する慣性力は、構造物の重量に水平震度を乗じた水平力として算出する。このときの水平震度は、河川構造物の耐震性能照査指針 Ⅳ水門・樋門及び堰編による。

11)液状化の影響

液状化の影響は、河川構造物の耐震性能照査指針 Ⅳ水門・樋門及び堰編による。

12)波圧

波圧について以下を考慮する。

  • 高潮区間や湖岸堤等で考慮する。
  • 波浪高の推定に当たっては「調査編第21章第5節及び本編第7章第2節」を参照する。

13)その他荷重

施工時荷重については、必要に応じて考慮する。

7.5.2 安全性能の照査

<考え方>

堰における安全性能の照査は、「7.5.1 設計の対象とする状況と作用」に示す状況と作用毎に、照査の条件として適切な上下流水位の組合せを設定し、安全性能について照査する必要がある。

(1)常時の安全性能

<標 準>

常時の安全性能の照査は、堰の上下流の水位差が最大となる際における水圧の作用等に対して安全な構造が求められる。以下の項目の安全性を評価し、所定の安全性又は許容値を満足することを照査の基本とする。

1)各部位の安全性

堰本体及び水叩きが転倒、滑動、基礎地盤支持力に対して所定の安全性を確保する。また、水叩きについては、揚圧力に対して所定の安全性を確保する。

2)発生応力に対する安全性

「7.5.1 設計の対象とする状況と作用」により、常時の操作において想定される諸条件を設定し、堰及びゲート部材に発生する応力が「7.5.3 許容応力度」以下となることを確認する。

3)耐浸透性能

堰及び水叩きと堤体や基礎地盤との接触面における浸透に対して、所定の安全性を確保する。

<推 奨>

1)各部位の安全性

所定の安全性とは、以下の安全率を満足する。

表7-6 各項目の安全率

項目安全率
転倒合力の作用点が中央1/3以内
滑動1.5
基礎地盤支持力3

2)発生応力に対する安全性

せん断応力度は、せん断力を部材幅(b)×有効高(d)で割った平均せん断応力度とする。せん断応力度の照査は、支点が直接支持となっているものは支点の前面より1/2×hだけ内側で行ってよい。(h:はり高)

3)耐浸透性能

耐浸透照査における所要の安全性は、地盤の土質区分、堤防断面形状、考慮する水頭差、遮水工の配置、深さ、長さ、不同沈下が生じる場合にはルーフィング発生による浸透経路長の減少を考慮したうえで、レインの式による浸透経路長を満足することを確認する。なお、遮水工を2列に入れる場合、深さに対して間隔が短すぎると浸透路長が遮水工沿いとはならない場合があるので、実現象に合うように浸透路長をとるよう留意する。また、地盤が互層の場合は、浸透流が常に浸透抵抗の小さいところを流れることを念頭において浸透経路を検討することが望ましい。

図7-14 遮水工の浸透経路長

レイン加重クリープ比:

CL3+ΣlΔHC \leq \frac{\frac{L}{3} + \Sigma l}{\Delta H}

ここに

  • CC:加重クリープ比(CvCv:遮水工の鉛直方向の加重クリープ比、ChCh:遮水工の水平方向の加重クリープ比)
  • LL:本体、水叩き及び取付擁壁の流下方向の浸透経路長(m)
  • Σl\Sigma l:遮水矢板等の鉛直方向及び水平方向の浸透経路長(m)(lvlv:鉛直方向の浸透経路長、lhlh:水平方向の浸透経路長)
  • ΔH\Delta H:上下流水位差(m)

表7-7 加重クリープ比 C

地盤の土質区分C
極めて細かい砂又はシルト8.5
細砂7.0
中砂6.0
粗砂5.0
細砂利4.0
中砂利3.5
栗石を含む粗砂利3.0
栗石と礫を含む砂利2.5
柔らかい粘土3.0
中くらいの粘土2.0
堅い粘土1.8

4)揚圧力に対する安全性

揚圧力に対する安全率は、4/3とする。

5)ゲート機能

ゲート機能は、同様の敷高・規模及び操作形式の堰における操作の確実性を確認できれば機能を確保しているとみなすことができる。なお、堆砂傾向については、必要に応じて水理模型実験を実施して確認する。

(2)洪水時の安全性能

<標 準>

洪水時の安全性能の照査は、計画高水位(高潮区間にあっては計画高潮位)以下の水位の流水の作用等に対して、以下の項目の安全性を評価し、所定の安全性又は許容値を満足することを照査の基本とする。

1)各部位の安全性

堰本体及び水叩きが転倒、滑動、基礎地盤支持力に対して所定の安全性を確保する。また、水叩きについては、揚圧力に対して安全性を確保する。

2)発生応力に対する安全性

「7.5.1 設計の対象とする状況と作用」により、洪水時に想定される諸条件を設定し、堰に発生する応力が「7.5.3 許容応力度」以下となることを確認する。

<推 奨>

1)各部位の安全性

所定の安全性とは、以下の安全率を満足するものとする。

表7-8 各項目の安全率

項目安全率
転倒合力の作用点が中央1/3以内
滑動1.5
基礎地盤支持力3

(3)耐震性能

<考え方>

堰の耐震性能の照査は、河川構造物の耐震性能照査指針に基づき実施する必要がある。レベル1地震動に対しては、地震によって堰としての健全性を損なわない構造が求められる。また、レベル2地震動に対しては、治水上又は利水上重要な堰は、地震後においても堰としての機能を保持する構造が、それ以外の堰は、地震による損傷が限定的にとどまり、堰としての機能の回復が速やかに行い得ることができる構造が求められる。

<推 奨>

1)各部位の安全性

レベル1地震動については、転倒、滑動、基礎地盤支持力に対し以下の安全率を満足するものとする。

表7-9 各項目の安全率

項目安全率
転倒合力の作用点が中央2/3以内
滑動1.2
基礎地盤支持力2

(4)風浪等に対する安全性能

<考え方>

堰は設置位置によって高潮時及び風浪時の波浪並びに計画津波水位以下の津波の作用等に対して安全な構造が求められる。

<標 準>

風浪等に対する安全性能の照査は、堰本体が受ける水圧及び波圧の作用に対して安全性を評価し、許容値を満足することを照査の基本とする。

7.5.3 許容応力度

<標 準>

許容応力度等は、使用する材料の基準強度や力学特性を考慮して、適切な安全性が確保できるように設定することを基本とする。

<推 奨>

許容応力度として、以下の値を用いることが望ましい。

1)コンクリートの許容応力度

表7-10 コンクリートの許容応力度(N/mm²)

設計基準強度許容曲げ圧縮応力度許容付着応力度許容せん断応力度
248.01.600.39

なお、無筋コンクリートの許容応力度は、道路橋示方書・同解説Ⅳ.下部構造編(平成24年3月)による。

2)鉄筋の許容引張応力度

表7-11 鉄筋の許容引張応力度(N/mm²)

応力度、部材の種類SD345
引張応力度:一般の部材※1180
引張応力度:厳しい環境下の部材※2160
荷重の組合せに衝突荷重あるいは地震の影響を含む場合の許容応力度の基本値200
鉄筋の重ね継手長あるいは定着長を算出する場合200

※1 通常の環境や常時水中、土中の場合(操作台に適用) ※2 一般の環境に比べて乾湿の繰り返しが多い場合や有害な物質を含む地下水位以下の土中の場合(堰柱、門柱、取付擁壁に適用)(海洋環境などでは別途かぶりなどについて考慮する)

3)鋼材の許容応力度(ゲート等の機械設備を除く)

表7-12、表7-13に構造用鋼材及び鋼管杭の許容応力度を示す。(複雑な表のため図として掲載)

4)鋼管杭の許容応力度

表7-13参照。

5)既製コンクリート杭の許容応力度

JISに基づき適切に定める。

6)許容応力度の割増し

作用の組合せにおいて地震の影響、温度変化の影響等を考慮する場合は、表7-14による許容応力度の割増しを行なうことができる。

表7-14 許容応力度の割増し

作用の組合せ割増率(%)
温度変化の影響を考慮する場合15
風荷重を考慮する場合25
地震の影響を考慮する場合50
温度変化の影響及び風荷重を考慮する場合35
施工時荷重を考慮する場合50

7.6 各部位の設計等

7.6.1 本体

(1)ゲート

1)ゲートの構造

<考え方>

洪水時及び高潮時において、ゲートを全開又は一部開放することによって計画高水位(高潮区間においては計画高潮位)以下の水位の流水の作用、風浪等における波圧に対して安全な構造となるよう設計する必要がある。ゲートは、確実に開閉(起伏)し、かつ、必要な水密性を有する構造とするため適切なゲート形式を選定する必要がある。堰のゲートは、一般に引上げ式のローラゲート、起伏式ゲートとして鋼製起伏ゲート及びゴム引布製起伏ゲート(図7-15、図7-16参照)等が使用されている。

図7-15 ゴム引布製伏式ゲート

図7-16 起伏式ゲート

<必 須>

ゲートは、確実な開閉(起伏)が行えるとともに必要な水密性を有する構造とし、設計荷重に対して安全な構造となるよう設計するものとする。

<標 準>

ゲート形式及び規模は、本体の形式・規模及び戸当り等、他の設備との配置を考慮して、設計条件を満足するように決定することを基本とする。

ゲートの基本寸法は、制約条件を考慮して、「7.4 基本的な構造」に準じて決定することを基本とする。

戸当りの形状はゲートの形式に適合したものとし、扉体支承部からの荷重を安全にコンクリート構造物に伝達することができるように寸法、強度及び剛性を有するものを基本とする。

<例 示>

河川や設置場所の特性に応じて、鋼製起伏堰[SR堰]の採用事例がある(図7-17参照)。SR堰は、鋼製の扉体と袋状のゴム引布製の起伏装置(以下「ゴム袋体」という。)を有し、ゴム袋体に空気又は水を充填し、若しくはゴム袋体から排除することによって起伏させる形式の堰をいう。

図7-17 SR堰各部の名称

また、ライジングセクターゲート(図7-18参照)やラジアルゲート等の採用事例もある。

図7-18 ライジングセクターゲート各部の名称

2)開閉装置

<考え方>

堰は、平常時は全閉しており、洪水時又は高潮時にゲートを全開又は一部開放し、河川の流水を制御する必要があることから、確実にゲートを開閉(起伏)できる必要がある。

<必 須>

開閉装置は、ゲートの確実な開閉(起伏)操作が行えるとともに、設計荷重に対して安全な構造となるよう設計するものとする。

<標 準>

開閉装置は、ゲートの開閉(起伏)を確実に行うために設け、ゲート形式に応じて適切な箇所に設けることを基本とする。

開閉用の動力は、電動機によるものとし、全てのゲートに開閉用予備動力を備えることを基本とする。

ゲートの操作のための設備は、施設規模に応じて、機側操作、又は遠方操作・遠隔操作とするものとする。なお、遠方操作・遠隔操作方式の場合には、機側操作も可能なものとする。機側操作は、確実に操作ができるものとし、機側操作中は、安全管理上遠方操作・遠隔操作方式では作動しないような構造とする。

(2)本体の安定計算

<考え方>

堰本体は、可動堰の場合、ゲート、床版、堰柱、門柱、ゲート操作台で構成し、固定堰の場合、固定堰本体で構成する。設計に当たっては、各部位の機能の確保と堰全体の安定に配慮した構造とする。

<必 須>

堰本体は、設計荷重に対して、転倒、滑動、基礎地盤支持力に対する所要の安全率が確保されるよう設計するものとする。

<推 奨>

1)可動堰の安定計算

安定計算の順序及び計算方法は、以下に示す方法が望ましい。

  • a)形状寸法の仮定:敷高、径間長、門柱高及び管理橋幅員等の諸元を満足するように本体のゲート操作台、門柱、堰柱、床版等の各部位の主要形状寸法を仮定し、本体の重量を求める。
  • b)ゲート、開閉装置、戸当り、管理橋、その他の付属物の重量の仮定:ゲート、開閉装置、戸当り重量の仮定は、敷高、径間長、ゲート高及び設計水深に対し、他の可動堰の実例、その他参考文献により算定する。また、管理橋重量は、幅員及び径間長に対し、他の施設例等の参考文献より算定する。その他の付属物で安定計算に影響を与えるおそれのあるものについては、それらの重量を仮定する。
  • c)荷重の計算:荷重の計算に当たっては、「7.5.1 設計の対象とする状況と作用」に基づいて算出する。
  • d)転倒、滑動、基礎地盤支持力に対する検討:転倒、滑動、基礎地盤支持力に対する検討は、2)の荷重条件に対して行い、その安全率が「7.5.2 安全性能の照査」の規定以上になるよう設計する。

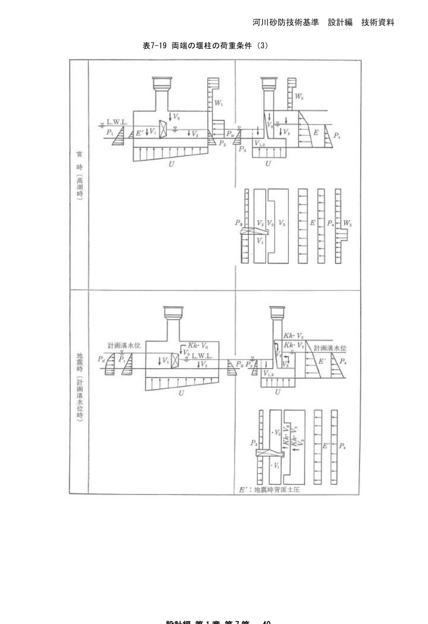
2)可動堰の安定計算を行う場合の荷重条件

表7-15〜表7-21は、可動堰の安定計算を行う場合の荷重条件(上流側に波圧を考慮する必要がない場合の荷重条件)の一例を示したものである。

表7-15 中央堰柱の荷重条件(1)

表7-16 中央堰柱の荷重条件(2)

表7-17 両端の堰柱の荷重条件(1)

表7-18 両端の堰柱の荷重条件(2)

表7-19 両端の堰柱の荷重条件(3)

表7-20 両端の堰柱の荷重条件(4)

3)固定堰の安定計算

固定堰の安定計算の順序及び計算方法は、以下に示す方法が望ましい。

  • a)形状寸法の仮定:敷高、水理条件より主要形状寸法を仮定する。
  • b)荷重の計算
    • (1) 鉛直荷重:荷重の計算に当たっては、「7.5.1 設計の対象とする状況と作用」に基づいて算出するが、固定堰の仮定した形状寸法により水流直角方向1m当たりの重量を計算する。
    • (2) 土圧:上流側は、固定堰天端まで堆砂する場合についても計算する。
    • (3) 水圧:堰の上下流の水位の組合せによる。
    • (4) 構造物の重量に起因する慣性力
    • (5) 揚圧力:1)と同様とする。
  • c)転倒、滑動、基礎地盤支持力に対する検討:転倒、滑動、基礎地盤支持力に対する検討は、2)の荷重条件に対して行い、その安全率が「7.5.2 安全性能の照査」の規定以上になるよう設計する。

4)固定堰の安定計算を行う場合の荷重条件

表7-21 固定堰の荷重条件

(3)床版

<考え方>

可動堰の床版は、上部荷重を支持し、ゲートの水密性を確保し、堰柱間の河床洗掘防止機能を果たすことができる構造とする必要がある。

図7-19 本体の形式が逆T形の場合の床版

<必 須>

床版は、ゲートと必要な水密性及びを有する構造とし、設計荷重に対して安全な構造となるよう設計するものとする。

<標 準>

床版は、河床洗掘を防止するとともにゲートとの水密性を確保し、本体の形式に応じてゲートや堰柱等の荷重を支持できる構造となるよう設計することを基本とする。底部戸当り面は、床版と同一平面とすることを基本とする。

(4)堰柱

<考え方>

堰柱は、ゲート側面の水密を確保し、門柱や操作台・操作室等の上部荷重及びゲートで受ける水圧を安全に床版に伝えるために設ける。堰柱の天端高は計画高水敷高以上(ゲート全閉時の天端高)とする必要がある。

<必 須>

堰柱は、門柱及び一部の床版と一体構造で、ゲートに必要な水密性を有する構造とし、設計荷重に対して安全な構造となるよう設計するものとする。

<標 準>

堰柱は、ゲートとの水密性を確保し、上部荷重及び水圧を安全に床版に伝えるために設置し、流下断面や径間長を考慮して適切な配置で設計することを基本とする。中央堰柱の形状は流水に対する抵抗に配慮した構造とすることを基本とする。

<推 奨>

堰柱の設計に当たっては、以下の方法で設計することが望ましい。

  1. 堰柱先端部には用心鉄筋として、中間部と同程度の配筋を設ける(図7-20参照)。
  2. 堰柱の構造計算に用いる有効断面には、原則として戸当りの箱抜部分の二次コンクリートを考慮せず設計する。また、有効長は、図7-21に示す箱抜き部、両端の円弧部は除き設定する。
  3. 門柱と堰柱との結合部、堰柱と床版との結合部は、応力集中を避けるため、図7-22のように配筋する。

図7-20 堰柱の配筋

図7-21 堰柱の有効長

図7-22 門柱と堰柱との結合部、堰柱と床版との結合部の配筋

引上げ式ゲートの場合の中央堰柱の断面形状は、流水に対する抵抗を小さくし、流水に対する安全性を確保するため、上下流端を半円形等とする例が多い(図7-23参照)。

図7-23 堰柱形状

(5)門柱

<考え方>

門柱は、ゲートを引上げるために設ける。門柱は堰柱や管理橋の配置とともに、門柱の断面寸法や戸溝の配置を勘案の上、配置する必要がある。

<必 須>

門柱は、堰柱、操作台と一体構造とし、設計荷重に対して安全な構造となるよう設計するものとする。

<標 準>

門柱は、ゲート形式が引上げ式ゲートの場合に設置し、堰柱及び管理橋の配置に合わせて設けることを基本とする。門柱の高さは、「7.4.3 門柱の天端高」に従って設定することを基本とする。

図7-24 門柱

(6)ゲートの操作台

<考え方>

操作台は、ゲート操作用の開閉装置及び操作盤等の機器の設置、照明等の付属施設を設けるため、引上げ式ゲートの場合は門柱の上に設ける。

<必 須>

引上げ式ゲートの操作台は、門柱と一体の構造とし、設計荷重に対して安全な構造となるよう設計するものとする。

<標 準>

引上げ式ゲートの操作台は、ゲート操作用の開閉装置、操作盤等の機器を設けるため、門柱の上に設けることを基本とする。ゲート操作台には、操作室を設けることを基本とする。

<推 奨>

操作室は、補修時に機器の搬出入ができる措置(例えば、チェーンブロック用梁、機器の大きさに応じた扉の設置等)をとることが望ましい。操作室の設置に当たっては、耐震性能や維持管理を考慮して適切な材質を選定することが望ましい。

7.6.2 水叩き

<考え方>

水叩きは、堰の安全を保ち、上下流河床と本体部分の粗度の違い又はゲート開放時の流水等によって河床が洗掘されるのを防止する必要な長さと構造を有する必要がある。水叩きの設計に当たっては、構造や材料の特性に応じた設計手法を適用しモデル化を行い、最も不利な断面力が生じる作用に対して、安全性が確保される必要がある。また、水叩きと床版の継手部は、吸出し防止を目的とし、水密性を確保する必要がある。

図7-25 水叩き

<必 須>

水叩きは、必要な水密性及びを有する構造とし、設計荷重に対して安全な構造となるよう設計するものとする。

<標 準>

水叩きの設計に当たっては、以下の事項を反映することを基本とする。

  1. 水叩きは、本体の上下流の河床に設けることを基本とする。また、本体の上下流の河床に設ける水叩きとは別に魚道、土砂吐き、閘門についても水理特性を考慮して水叩きを設ける。
  2. 水叩きと護床工を含めた長さは、必要に応じて、水理計算、水理模型実験、河床材料、河道形状(単、複断面)、河床勾配、堰の全幅、揚圧力に対する安定条件、遮水形状等についての検討結果及び過去の事例等を参考として総合的に判断して決定する。
  3. 水叩きは堰本体を保護する最も重要な構造物であり、鉄筋コンクリート構造とする。
  4. 水叩きと床版との継手は、水密でかつ不同沈下にも対応できる構造とする。

<推 奨>

1)継手の構造

継手の構造には、一般にダウエルバー方式(スリップバー方式)とキー方式がある。ダウエルバー方式は施工が煩雑であるが、耐震性や、たわみ性において優れており、ダウエルバー方式を採用するのが望ましい。

図7-26 水叩きの継手

2)摩耗対策

水叩き等では、流水等の侵食作用によるコンクリート表面の摩耗、礫の落下や転石による直接衝突によるコンクリート表面のひび割れや剥離が生じやすいため、必要に応じて、コンクリート自体の摩擦抵抗性を高めるほか、摩耗抵抗性の高い材料によってコンクリート表面を保護する等の摩耗の進行を抑制する対策を検討することが望ましい。

3)水叩きと護床工を含めた長さ

水叩きと護床工を含めた長さは、「水理公式集」等に示される式を使用して跳水計算を行い、射流区間や通常の河川流になる位置を水叩きの長さや護床工の長さとする方法がある。

表7-22 水叩きの安定計算のための荷重条件

7.6.3 護床工

<考え方>

護床工は、堰上下流で生じる局所洗掘の防止や、高速流の減勢のために本体上下流側に設ける必要がある。工種の選定に当たっては、剛性、粗度、安定性、施工性、河床変動とのなじみ、腐食、吸出し等の点を検討の上、決定する必要がある。

<必 須>

護床工は、必要な屈とう性を有する構造とし、設計流速に対して安全な構造となるよう設計するものとする。

<標 準>

護床工は、本体及び水叩きの上下流での洗掘を防ぐため、水叩きの上下流側に設けることを基本とする。護床工は、屈とう性を有する構造とし、本体上下流での洗掘を防ぐことができる長さ及び構造となるよう設計することを基本とする。

7.6.4 基礎

<考え方>

基礎は、床版及び魚道や土砂吐きの下に同一の基礎形式を選定し、不同沈下を起こさず、堰や堤防の弱点とならないようにすることが必要である。基礎は、鉛直荷重のみならず水平荷重に対して安定する構造として設計する必要がある。

<必 須>

基礎は、上部荷重等によって不同沈下を起こさないよう、良質な地盤に安全に荷重を伝達する構造とするものとする。また、水平荷重に対して安定する構造とするものとする。

<標 準>

基礎は、本体と魚道や土砂吐きの下に同一の基礎で設けることを基本とする。基礎は、発生する変位を堰の安定とゲートの開閉(起伏)に支障のない範囲内に抑えるように設計することを基本とする。基礎の形式及び構造は、良質な地盤に安全に荷重を伝達できるよう適切に選定することを基本とする。

7.6.5 遮水工

<考え方>

遮水工は、堰柱や床版及び水叩き下部の土砂流動と、洗掘による土砂の吸出しにより、堰が堤防の弱点となることを防止するために設ける。本体及び水叩き端部に設けられる遮水工は、取付擁壁及び護岸に設置する遮水工と連続させる。また、取付擁壁に設ける遮水工は、本体及び水叩き端部に設けられる遮水工と同規模とする必要がある。

<必 須>

遮水工は、必要な水密性を有する構造とし、地盤条件や施工条件に対して安全な構造となるよう設計するものとする。

<標 準>

遮水工は、堰上下流の水位差によって生じる浸透水の動水勾配を減少させ、堰下部の土砂の流動及び土砂の吸出しを防止するため、適切な位置に設けることを基本とする。遮水工の構造は、原則としてコンクリート構造のカットオフ又は鋼矢板構造とし、遮水工の深さ、水平方向の長さは、堤防断面形状、水頭差、浸透経路長、過去の事例などを総合的に検討の上で決定することを基本とする。

図7-27 遮水工(カットオフ)

図7-28 遮水工(鋼矢板構造)

7.6.6 取付擁壁・護岸

<考え方>

洪水時には河床そのものが動いており、堰の設置によってその連続性が失われるので、堰の上下流において射流の有無にかかわらず局所的な洗掘が生じやすい。このため、堰の上下流の河岸又は堤防には、しかるべき範囲に護岸を設ける必要がある。その範囲は、上流側は堰の上流端から10mの地点又は護床工の上流端から5mの地点のうちいずれか上流側の地点、下流側の水叩きの下流端から15mの地点又は護床工の下流端から5mの地点のうちいずれか下流側の地点までの範囲を最低限として設ける必要がある(図7-29参照)。

図7-29 堰の設置に伴い必要となる護岸を設置する最小範囲

図7-30 護岸を設ける区間のうち取付擁壁構造の護岸とする区間

<必 須>

護岸は、流水の変化に伴う河岸又は堤防の洗掘を防止するために設けるものとし、設計流速に対して安全な構造となるよう設計するものとする。

また、取付擁壁の構造は、堤防の機能を損なわず流水の乱れに伴って生じる河岸侵食を防止するように、仮に堰本体及び水叩きが消失しても安定である構造(堰本体及び水叩きをなしとした場合の安定計算を行う必要がある)とするものとし、必要に応じて周辺景観との調和に配慮して設計するものとする。

<標 準>

堰の設置に伴い必要となる取付擁壁・護岸は、以下の事項を設計に反映することを基本とする。

  1. 堰の設置に伴い必要となる護岸は、以下により設定する。
    • ①堰に接する河岸又は堤防の護岸は、上流側は堰の上流端から10mの地点又は護床工の上流端から5mの地点のうちいずれか上流側の地点から、下流側は水叩きの下流端から15mの地点又は護床工の下流端から5mの地点のうちいずれか下流側の地点までの区間以上の区間に設ける。
    • ②前項に掲げるもののほか、河岸又は堤防の護岸は、湾曲部であることその他、河川の状況等により特に必要と認められる区間に設ける。
    • ③河岸(低水路の河岸を除く)又は堤防の護岸の高さは、計画高水位とするものとする。ただし、堰の設置に伴い流水が著しく変化することとなる区間にあっては、河岸又は堤防高とする。
    • ④低水路の河岸の護岸の高さは、低水路の河岸の高さとする。
  2. 取付擁壁の設置範囲は、堰本体の構造、堤防法線の線形、護岸の形式、魚道、土砂吐き、閘門の有無及びその位置等を考慮する。ただし、必要最小限水叩きの区間まで設ける。

7.6.7 高水敷保護工

<考え方>

流水が高水敷を流下する場合、堰付近では流水の乱れにより護岸の肩部分及び高水敷内に設けられた構造物の部分(例えば魚道)が特に洗掘されやすい。したがって、高水敷内の構造物周辺及び護岸肩部分については、コンクリートブロック、コンクリート床版等によって保護する。この場合、粗度を急変させないよう留意する。

図7-31 高水敷保護工の敷設例

<必 須>

高水敷保護工は、堰に接続する高水敷の洗掘を防止するために設けるものとし、設計流速に対して安全な構造とするものとする。

<標 準>

高水敷保護工は、流水等の作用による高水敷の洗掘を防止するため、高水護岸前面に設けることを基本とする。高水敷保護工の構造は、河川環境や景観に配慮した構造を基本とする。高水敷保護工は、「7.6.6 取付擁壁・護岸」で示す護岸の範囲において設けることを基本とする。

7.6.8 魚道、閘門、土砂吐き

<考え方>

堰には、自然環境保全、舟の通行、安定取水のため必要があるときは、魚道、閘門、土砂吐きを設ける必要がある。魚道の規模、構造形式は、対象となる魚種とその習性、利用可能な流量、魚道上・下流の水位変動等を考慮して決定する。

<必 須>

堰を設ける場合において、魚類の遡上等を妨げないようにするため必要があるときは、魚道を設けるものとする。魚道の構造は、次に定めるところによるものとする。

  1. 堰の直上流及び直下流部における通常予想される水位変動に対して魚類の遡上等に支障のないものとすること。
  2. 堰に接続する河床の状況、魚道の流量、魚道において対象とする魚類等を適切に考慮したものとすること。

<標 準>

堰に魚道や閘門を設ける場合には、以下を基本とする。

  1. 魚道の規模(延長、幅員等)、形式は、対象となる魚種の習性や魚道通過時の成長の度合いを考慮して決定する。
  2. 閘門には、船舶の航行に支障を及ぼさないよう導流壁を必要な長さまで設ける。
  3. 閘門の閘室の有効幅と有効長さは、次のように定める。
    • 有効幅=対象船舶の幅×配列数+余裕
    • 有効長さ=対象船舶の長さ×縦方向隻数+余裕
  4. 閘門ゲート開閉の所要時間は、通航船の通過時間に与える影響、開閉装置の機構と規模、経済性等を総合的に判断して決定する。

7.6.9 付属施設

(1)管理橋

<考え方>

堰の開閉(起伏)操作及び維持管理、河川管理用通路、一般の道路橋として利用するため、管理橋を設置し堤防天端と接続する必要がある。管理橋の桁下高は、流下断面を阻害しないことを目的に、計画堤防高以上とする必要がある。

<必 須>

堰の管理を目的として設置する管理橋は、設計荷重に対して安全な構造となるよう設計するものとする。

<標 準>

管理橋は、堰の操作、河川管理用通路、一般道として利用するため、堰柱上に設置し堤防天端と接続するよう設けることを基本とする。管理橋の桁下高は、計画高水位に余裕高を加えた堤防高さ(現状の堤防の高さが計画堤防の高さより高い場合には現状の堤防の高さ)以上とすることを基本とする。管理橋の幅員は、堰に接続する管理用通路の幅員、交通量、その重要性等と、堰管理及び防水時の交通を考慮して20t以上の適切な値を設定することを基本とする。ただし、管理橋の幅員が3m未満の場合や兼用道路にならない場合はこの限りではない。堰に接続する堤防が兼用道路の場合で、設計自動車荷重を道路構造令(昭和45年政令第320号)第35条第2項に規定する25tとしている場合には、設計自動車荷重を25tとすることを標準とする。また、河川管理上必要と認められる場合には、設計自動車荷重を25tとしてもよい。

(2)その他付属施設

<考え方>

付属施設には、管理所、警報設備、水位観測設備、照明設備、CCTV設備、管理用階段、ゲート操作用階段、防護柵、クラップ等があり、維持管理及び低水時、洪水時の操作に必要な施設を設ける必要がある。

<標 準>

堰には、維持管理及び操作のため、必要に応じて付属施設を設けることを基本とする。

7.6.10 既存施設の自動化・遠隔化

<考え方>

新設の堰のゲートの操作のための設備については、必要に応じて自動化、遠方操作化や遠隔操作化を検討することとしているが、既存の堰のゲートの操作のための設備についても、堰の目的、規模、操作員の負担軽減や安全の確保等の管理体制を踏まえ、必要に応じて自動化、遠方操作化や遠隔操作化を検討することとする。

<標 準>

堰のゲートの操作のための設備については、必要に応じて自動化、遠方操作化や遠隔操作化を検討することを基本とする。

7.7 堰構造に関するその他の事項

<考え方>

1)気候変動等を踏まえた施設設計について

気候変動による将来の予測として、降雨量の増加、平均海面水位の上昇、潮位偏差及び年最大波の極値の増加等が想定されており、外力が増加する可能性があることにも留意して設計する必要がある。そのため、堰等の耐用期間の長い施設については、外力の増加への対応として、大規模な改良とならないよう補強しやすい構造とする又は、あらかじめ対策を施すなどの「構造上の工夫」が求められる。

また、堰の設備においては、マスプロダクツ化や故障することも考慮した機能確保「N+1保全」の考え方を取り入れた設計に配慮することも考えられる。

2)ICTやBIM/CIMの利用

i-Construction推進の一環として、ICTによる建設生産プロセスのシームレス化が取り組まれている。UAV写真測量やレーザースキャナー計測などで得られる3次元点群データを活用することで、現況地形や既設構造物の構造を様々な角度・断面から把握することができ、新設・改築する施設の3次元モデルを作成し活用していくことで、構造に関して関係者の理解と合意形成が促進される。このため、施工段階、施工後の点検・補修・修繕の段階においてBIM/CIMを積極的に活用し、堰本体及び堰周辺の堤防を適切に維持管理していくことができるように、設計成果を3次元モデルに反映しておくと有用である。

<例 示>

気候変動により外力が増大し、将来、施設の改造が必要になった場合でも、外力の増大に柔軟に追随できる、できるだけ手戻りの少ない設計を実施している以下のような事例がある。

  • 水門では、耐用年数内の平均海面水位の上昇量を想定し、改造等が容易な構造形式の選定、追加的な補強が困難な門柱部の嵩上げ及び基礎部補強をあらかじめ実施している。